A Home for Hope: Friend, Inc. Community Services

Friend, Inc. Community Services is a nonprofit organization working to reduce food insecurity and household economic pressures for families in Berks County. Founded in 1972, Friend, Inc. originally served to support recovery efforts in the drug and alcohol use-disorder field. In 1987, with support from the United Way of Berks County, the agency began focusing on food insecurity and social support needs.

Today Friend, Inc. successfully serves the 47,000 residents of Kutztown, Fleetwood, and Brandywine Heights. In 2025, over 430,000 pounds of food were brought to kitchen tables throughout Berks County. 

It all began in Kutztown, PA when Friend, Inc. moved into its headquarters at 658 Noble Street. Thirty-eight years later, the organization has become a proud member of the following communities they serve:

  • The Noble Street Pantry – Self-select and pet pantry, open daily operating out of the headquarters.
  • The Noble Street Open Pantry – Once-a-month pantry open to the public, operating out of the headquarters.
  • The Kutztown University Student Pantry – Self-select food pantry open daily, operating out of Kutztown University’s McCallister Student Union Building.
  • The Albany Township Pantry – Once-a-month pantry open to the public, operating out of the Kempton Community Center.
  • Alburtis Mobile Market– Once-a-month pantry open to the public, operating out of the Huff’s Union Church in Alburtis.
  • Brandywine Food Pantry – Pantry open to the public five days per month, operating out of St. Peter’s Church in Topton.
Click here to learn more about Friend, Inc. locations. 
  •  

While the organization has helped many others find stability, it has never had a permanent home for itself. Now, that’s all about to change. 

Having outgrown the current leased space, Friend, Inc. has decided to end decades of renting to help ensure operations without limitations or interruptions. A permanent facility is more than four walls; it’s reliable access to food for families facing hardships and a stable foundation to serve neighbors. 

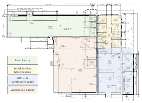
Moving to 60 Bieber Alley, Kutztown, Friend, Inc. is expanding its reach. The new facility is in the heart of Kutztown, next to the Kutztown Community Library. Executive Director, Jim Reece, stressed the importance of accessibility. The new location is walkable and sits along Kutztown University’s shuttle route, allowing Friend, Inc. to reach more neighbors. 

Executive Direcetor, Jim Reece, interviewing with WFMZ 69 News

Friend, Inc. has engaged DESCCO General Contractors in Fleetwood, PA to handle the construction and design process. This new location will house the food pantry as well as office space for social services and room for new innovative programs, including senior digital literacy, hands-on family cooking workshops and practical household finance courses. 

The upgraded pantry will be “styled like a grocery store” said Reece, in a recent interview with the Reading Eagle. The design will reflect a human-centered model, allowing shoppers the ability to select the food they are taking home. In another recent interview with 69 News, Reece touched on the importance of a welcoming environment. Read the full article here.

This space represents a long-term commitment to the community and will empower future generations. Friend, Inc. will be here to stay.

The Difference in Banking Local

In 2012, Friend, Inc. made the decision to bank local. Talks of a permanent home began in April 2025, at Fleetwood Bank’s ribbon cutting ceremony for its new renovated Kutztown Branch. At the ceremony, Reece mentioned to one of Fleetwood Bank’s Relationship Managers, Thomas Bendetti, that Friend, Inc. needed a forever home. 

When Jim shared with me in April that he had identified a property within walking distance to Kutztown's downtown, I was excited by the idea of the organization's expansion and improved accessibility. Within weeks of our initial conversation, Friend, Inc.'s Board of Directors approved the motion for him to seek financing."

Thomas J. Bendetti, VP, Relationship Manager

Four months later, in August 2025, Fleetwood Bank stood alongside the nonprofit as they purchased the 8,500-square-foot building. Fleetwood Bank provided a $315,000 loan to support the expansion of services to the community. 

Successful implementation of this new building will bridge the gap between existing resources and unmet community needs. By providing this loan, Fleetwood Bank is encouraging Friend, Inc. to reach more neighbors in need for years to come and serve as a catalyst to help build strong communities. 

Fleetwood Bank was the logical choice and naturally our first stop when the need to purchase a new building arose. We have been a customer of the Bank for many years, and we have always had a strong partnership with them by ensuring a Fleetwood Bank employee is always sitting on our Board. As an organization, Friend, Inc. has always valued Fleetwood Bank as a local business that gives back to the community."

Jim Reece, Executive Director, Friend, Inc.

Mid February Progress

Main Menu

Online Banking

Username

New to Online Banking?

Download Our App

Online Banking Enrollment Forms